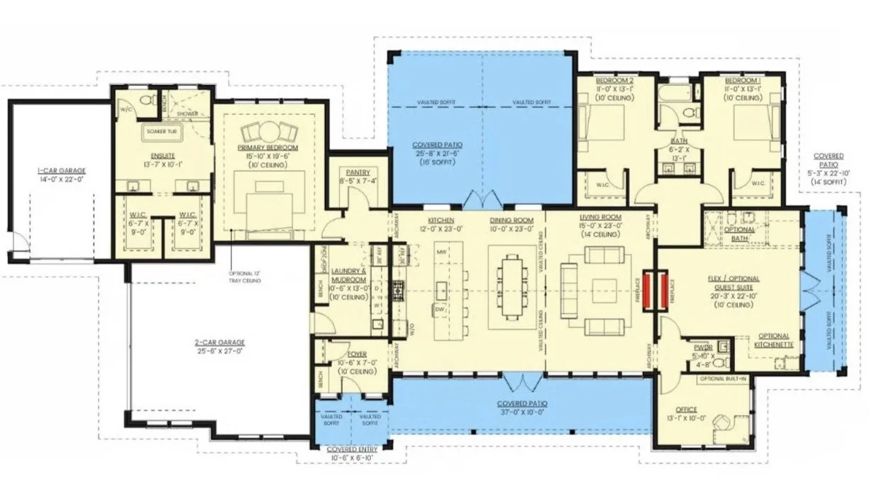
The Elevated Ranch
3,153 square feet | 3 bed | 2.5 bath
flex/guest space | 4 bed | 3.5 bath
Step into a welcoming foyer with 10-foot ceilings that open into a spacious, well-organized layout. The true open-concept design connects the kitchen, dining, and great room, all oriented toward multiple patios for seamless indoor–outdoor living. The primary suite is privately positioned with direct access to a large laundry and mudroom, while secondary bedrooms and a guest/flex space with its own private patio are thoughtfully separated. A dedicated office and true foyer complete a layout designed for both function and flow.
The Elevated Ranch
Spacious kitchen with large island
Living area offers lots of natural light
Back Patio
Guest suite with patio

